Für das analoge Fernsehen sind neben den Dach-Antennen auch Antennen-Verstärker, Filter, Weichen und Verteilanlagen nötig. Eine Besonderheit in der DDR war, die Anlagen für den West-Fernempfang auszurüsten. Die nötige Technik stand meist nicht zur Verfügung. Der Eigenbau stand hoch im Kurs.
Ein Antennenverstärker unter dem Dach konnte zwar die meist riesige Antenne auf dem Dach nicht ersetzen, Kabelverluste wurden aber ausgeglichen. Der Empfang der "Westsender" war ohne große Antenne und dem (damals) rauscharmen Antennenverstärker überhaupt nicht möglich.
Allerdings gab es DDR-typisch gleich mehrere Probleme, wenn westdeutsche Sender einigermaßen gut empfangen werden sollten:
Das folgende Bild zeigt, welcher Aufwand auf dem Dach getrieben werden musste, wenn der Empfang einigermaßen vernünftig sein sollte.
Mit Ausstrahlung der 2. Programme im UHF-Bereich wurde die Material-Situation noch verschärft. Zunehmend wurden Antennen, Verstärker, Filter und letztlich auch ganze Antennenanlagen privat beschafft, selbst hergestellt und errichtet. Wer nicht selbst das Wissen oder die Möglichkeit dieser Selbsthilfe hatte, beauftragte eben Bekannte, die dies konnten.
Aus dieser Situation heraus entstanden die im Folgenden beschriebenen Verstärker, Weichen und Filter. Die große Zahl der Hilfesuchenden zwang mich, ein gewisses Baustein-System zu entwickeln. Beispielsweise basieren eine Reihe von Verstärker-Schaltungen auf dem gleichen Leiterplatten-Layout.
Die Schaltungen sind auf die speziellen Anforderungen in Sachsen abgestimmt, d.h. auf die empfangbaren Westsender Kanal 4 (ARD, Ochsenkopf), Kanal 23 (ZDF) und Kanal 10 ("Hamburger"). Im UKW-Stereo-Bereich waren vor allem die bayerischen Sender interessant. Diese erforderten aber eine spezielle Filtertechnik, um Störungen durch die starken DDR-UKW-Sender zu vermeiden.
Das spätere DDR-Sortiment an Verstärkern und Weichen hätte zwar (mit Abstrichen) fast ausgereicht, erfüllte jedoch zu keiner Zeit alle Anforderungen und war nicht immer verfügbar.
Neben der Antenne ist der Antennen-Verstärker das wichtigste Element zum Empfang schwacher Sender-Signale. Folgende Eigenschaften sind zu fordern:
Besonders die eingesetzten Transistoren bestimmen (neben dem Schaltungsprinzip und Aufbau) das Ergebnis. Anfänglich wurden Ge-Transistoren eingesetzt, später auch Si-Transistoren. Es entstanden eine ganze Reihe von Antennen-Verstärkern, die sich grob in Bereichs-Verstärker, Kanal-Verstärker und Anschluss-Verstärker unterteilen lassen. Letztere haben eine höhere Aussteuerfähigkeit zum Treiben der Verteilanlagen in Gemeinschafts-Antennenanlagen.
Die Schaltungen entsprechen dem damaligen Stand, Besonderheiten sind im jeweiligen Schaltbild vermerkt. Bei Einsatz moderner Transistoren sind heute insbesondere bessere Rauscheigenschaften zu erwarten.
Dem Aufbau nach sind die Verstärker in normaler Leiterplatten-Technik und in Topfkreis-Technik unterscheidbar. Besonders mit Topfkreisen lassen sich selektive Kanal-Verstärker aufbauen, die in schwierigen Empfangssituationen Nahsender-Störungen vermeiden.
Die folgenden Verstärker-Schaltungen sind vielfach praxiserprobt und basieren auf wenigen Gehäusevarianten. Alle Verstärker (auch die weiter unten beschriebenen Weichen und Filter) sind geschirmt, steckbar und verfügen über die Möglichkeit, die Versorgungsspannung über das Koaxkabel zu schleifen.
Dieses Gehäuse ist aus einseitig Cu-kaschiertem glasfaserverstärktem Leiterplatten-Material gefertigt. Das 1,5mm-Halbzeug war in ausreichender Menge erhältlich, läßt sich gut bearbeiten (Schneiden mit der Handhebelschere) und erfüllt aus HF-technischer Sicht seine Funktion hervorragend.
Im Bild ist eine Eingangsbuchse und ein Ausgangsstecker gezeichnet. Für mehr Eingänge oder Ausgänge kann jede Gehäuseseite mit maximal zwei Einbau-Buchsen bzw. -Steckern bestückt werden. Damit ist das Gehäuse flexibel einsetzbar.
Die Zuführung der Speisespannung erfolgt normalerweise mit über das Koaxkabel. Aber auch die separate Einspeisung ist möglich. Dazu sind in einer Seitenwand 2 Löcher gebohrt, die zur Isolation der durchgeführten blanken Anschlussdrähte auf der Cu-kaschierten Innenseite angesenkt sind.
Der Aufwand für das fotochemische Verfahren zur Leiterbild-Erstellung war recht groß (wie auch heute noch). Außerdem waren die chemischen Zutaten schwer erhältlich. Eine aktzeptable und relativ einfach zu realisierende Lösung war deshalb die Frästechnik. Dieses Verfahren, mit dem die Leiterzüge (meist wenige Lötinseln) mittels eines Stichels von der Cu-Schicht separiert werden, kommt der HF-Technik entgegen. Es ergeben sich automatisch breite Leiterzüge und der ganze Rest ist Masse.
Das Fräsen erfolgt mit einem Stichel oder ausgedientem Dental-Bohrer in der Ständerbohrmaschine. Ist die Bohrmaschinen-Höhe (d.h. die Frästiefe) richtig eingestellt, ergeben sich gleichmäßige Ausfräsungen der Kupferschicht. Beim Fräsen wird die Leiterplatte von Hand geführt, die Bohrmaschine mit dem Stichel ist fest. Das Aufsetzen des Stichels auf und das Abheben von der Leiterplatten-Oberfläche wird vorteilhaft mit dem Fuß erledigt, so dass beide Hände zur Führung der Leiterplatte frei sind. Ich habe dazu am beweglichen Teil des Bohrmaschinenständers einen stärkeren Draht befestigt und bis zu meinem rechten Fuß geführt. Sitzend und den Fuß in der Drahtschlinge konnte ich so über den Hubmechanismus des Bohrständers den Gravierstichel auf- und absetzen. Das Absetzen nach oben erfolgt dann durch die Rückhol-Federkraft.
Die Bohrmaschinen-Drehzahl sollte möglichst hoch und der Stichel scharf angeschliffen sein. Dadurch ergeben sich saubere Fräßgräben, die nur gering (z.B. mit 240-iger Schleifpapier) nachbearbeitet werden müssen.
Natürlich ist eine spezielle Fräseinrichtung mit sehr hoher Drehzahl (20 bis 30.000 U/min) die bessere Lösung. Doch unter den damaligen Verhältnissen war für mich die geschilderte Methode optimal.
Folgende Reihenfolge hat sich bewährt:
Bei Verstärkern/Filtern mit Topfkreisen sind die Arbeitsschritte ähnlich, bestimmte Bauelemente (Innenleiter, Rohr-Trimmer) können auch vor dem Gehäuse-Zusammenbau eingelötet werden. Außerdem können Topfkreise natürlich nur im geschlossenen Zustand abgeglichen werden.
Zur guten Kontaktgabe der Abdeckungen (Boden/Deckel) sind bei Topfkreisen zusätzlich zu den verzinnten Ecken weitere Maßnahmen erforderlich. Der Boden kann auch fest eingelötet sein bzw. gleich als Lötbasis beim Gehäuse-Zusammenbau dienen. Die eingelöteten Bauelemente sollten allerdings auch später noch zugänglich sein. Damit entfallen die Muttern und Löcher für die Boden-Verschraubung. Zur Kontaktgabe des verschraubten Deckels ist es vorteilhaft, die oberen Schnittkanten der Seiten- und Zwischenwände mit dünnem Weißblech, vorzugsweise aber Cu-Folie, zu überbrücken. Der Kontaktbereich des Deckels zu diesen eingelöteten Folien ist ebenfalls zu verzinnen.
So ergeben sich akzeptabel aussehende Verstärker bzw. Weichen mit guten HF-Eigenschaften. Das Verfahren ist auch heute noch anwendbar, schnell und günstig. Insbesondere die Frästechnik bietet sich an, wenn eine kleine HF-Schaltung oder eine andere Schaltung mit hoher Verarbeitungsfrequenz realisiert werden soll. Auch eine Verbindung der Frästechnik mit der heute teilweise angewandten wilden Verdrahtung über einer Cu-Fläche ist günstig. Die Schaltung sieht dann nicht ganz so "wild" aus, erfüllt aber HF-technische Forderungen hervorragend.
Natürlich ist die Hand-Frästechnik bei kompliziertem Leitungsmuster und/oder langen Leitungen oder auch bei hoher Leitungsdichte nicht anwendbar.
Vielleicht sollte ich an dieser Stelle nochmals darauf hinweisen, dass ein Computer höchstens in der Firma, niemals aber im Home-Bereich, vorhanden war. Ich berichte hier vom Zeitraum Anfang der 70-iger Jahre. Es war also weder möglich, irgendwas am PC zu entwerfen oder auszudrucken. In meiner Ausbildung benutzten wir noch den guten alten (mechanischen) Rechenschieber.
Die folgenden Antennen-Verstärker verstärken einen oder auch mehrere Empfangsbereiche, sind also nicht kanal-selektiv. Der Aufbau erfolgt durchweg auf Leiterplatte im Standardgehäuse. Die Betriebsspannung kann wahlweise über das Koaxkabel oder direkt über extern zugängliche Lötanschlüsse erfolgen.
Eingangs werden die Bänder gefiltert, der Ausgang ist breitbandig und mit HF-Trafo 1 (L6) an 75 Ω angepasst. Für L6 kann auch der Übertrager aus dem ESY5 genommen werden. ESY5 ist ein steckbares Symmetrierglied von 300 auf 75 Ohm.
Der Aufbau erfolgt im Standard-Gehäuse und, wie alle anderen Verstärker auch, völlig geschirmt. Weitere Daten enthält das Bild.
Die Leiterplatte ist universell für viele der folgenden Verstärker nutzbar. Einige gefräste Inseln werden je nach Bedarf mit Lötzinn gebrückt. Die Spulen sind so angeordnet, dass sie sich möglichst wenig beeinflussen. Sie liegen voll auf der Leiterplatte auf, zu Masse ergibt sich damit entsprechend Leiterplatten-Dicke ein Abstand von 1,5 mm. Das ergibt einen reproduzierbaren Aufbau bezüglich L-Wert und Streukapazität. Der Eingangsbuchsen-Mittelstift ist nicht erst mit der Leiterplatte verbunden, sondern direkt mit den Eingangskondensatoren. Dies ist HF-technisch günstiger und wird, wo es möglich ist, bei allen Schaltungen so praktiziert.
Zur sicheren Unterdrückung einer Selbsterregung des Verstärkers durch Rückkopplung ist, falls erforderlich, ein kleines Trennblech neben dem Transistor eingelötet. So können sich die Ein- und Ausgangsspulen nicht sehen. Das Weißblech (kupferkaschiertes Halbzeug geht auch) liegt direkt auf der Leiterplatte auf und schließt bündig mit dem Deckel ab. Es wird einfach mit den Seitenwänden verlötet. Für ein Transistorbein und evtl. Widerstände ist das Trennblech entsprechend auszusparen. Das Trennblech ist bei allen Verstärkern sinnvoll, bei denen die Standard-Leiterplatte eingesetzt wird.
Dieser Verstärker ist ebenfalls für die Kanäle 2 bis 4 und UKW vorgesehen, kann aber ausgangsseitig aufgrund des Tiefpasses direkt mit einem Verstärker-Ausgang zusammengeschaltet werden, der ausgangsseitig einen entsprechenden Hochpass hat. Eine Weiche zur Zusammenschaltung z.B. dieses BI/II-Verstärkers mit einem BIII- oder UHF-Verstärker ist somit nicht erforderlich.
Dieser für UKW vorgesehene Verstärker hat nur den breitbandigen HF-Trafo 1 (L4) zur ausgangsseitigen Anpassung. Der Ausgang besitzt also keine Selektivität und kann deshalb nur über eine Weiche mit anderen Frequenzen zusammengeführt werden.
Im Gegensatz zum trafo-gekoppelten Ausgang geschieht hier die Impedanz-Anpassung kapazitiv (C5 und C6). Außerdem ist der Transistor Q1 mit R3 gleichstrommäßig gegengekoppelt. Somit ergibt sich eine bessere Arbeitspunkt-Stabilität.
Der folgende UKW-Verstärker ist für den Einsatz unmittelbar an einer leistungsfähigen UKW-Antenne vorgesehen, wenn aus gleicher Richtung starke Sender den Fernempfang stören könnten.
Damit auch starke UKW-Signale linear (ohne Kreuzmodulationsstörungen) verarbeitet werden können, ist der russische Transistor KT610A eingesetzt. Dieser arbeitet bei hohem Strom noch relativ rauscharm und verträgt höhere Signalpegel. Der IMA (Intermodulationsabstand) ist höher. Im Bild sind zwei Varianten für unterschiedliche Kollektorströme angegeben. Die 30mA-Variante wird direkt an der Antenne betrieben, die 50mA-Variante als Nach-Verstärker.
Der hohe Betriebsstrom verlangt eine Kühlung. Deshalb ist der KT610A direkt auf eine große Leiterplattenfläche oder auf eine andere Kühlfläche zu schrauben.
Alle weiteren wichtigen Daten, insbesondere der Aufbau des Lochkern-Übertragers, sind im Bild angegeben.
Die folgende Blockschaltung zeigt, wie die Konfiguration mit zwei dieser Verstärker aussieht.
So wie im Bild gezeigt, waren die Verstärker praktisch im Einsatz. Die Durchgangsdämpfung der UKW-Topfkreis-Filter wird mehr als ausgeglichen. Eine genügend hohe Verstärkungsreserve ist vorhanden. Mit den Topfkreisen, die als Sperrfilter für starke (störende) Nahsender arbeiten, werden die Empfangspegel angeglichen. Sollte der dann stärkste Pegel immer noch zu hoch sein, muss dies mit dem Eingangs-Pegelsteller (Dämpfungssteller) des Hausverstärkers ausgeglichen werden.
Die UKW-Topfkreise sind weiter unten beschrieben.
Wird im Band III eine höhere Verstärkung benötigt, ist dieser 2-stufige Verstärker geeignet. Allerdings ist die Gefahr, dass hohe Signalpegel von der 2. Verstärkerstufe nicht mehr linear verarbeitet werden können, ziemlich groß. Ein 1-stufiger Vorverstärker in Kombination mit enem hochstromigen 1-stufigen Nachverstärker ist bei hohem Signalpegel die bessere Lösung.
Dieser Verstärker ist für Band III ebenfalls 2-stufig. Zur Verstärkung von Kanal 2 bis 4 und UKW ist ein zweiter Eingang vorhanden. Diese niedrigeren Frequenzen werden erst nach der ersten Stufe eingekoppelt, da die Verstärkung für Band I/II mit einer Stufe ausreicht.
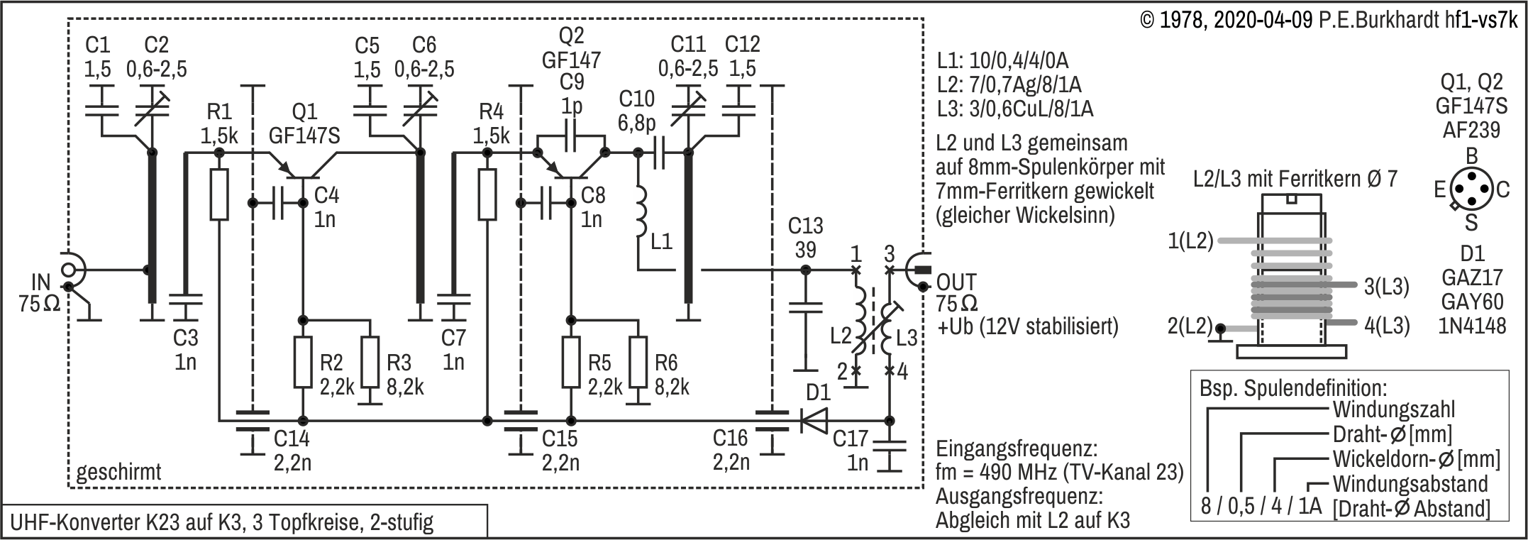
Mit Erschließung des UHF-Bandes wurden die neuen Sendefrequenzen schnell von den zweiten Programmen erobert. Neben dem 2. Programm der DDR war nun vor allem das ZDF interessant. War bisher der Empfang des vertikal polarisierten Kanal 4 (Ochsenkopf) noch eine eher leichte Aufgabe, stand nun das Rauschproblem im UHF-Bereich im Vordergrund.
Der Verstärker arbeitet in beiden Stufen mit Ge-Transistoren. Diese sind zwar relativ kreuzmodulations-empfindlich, hatten aber damals bessere Rauscheigenschaften als die verfügbaren Si-Transistoren. Anfangs war der DDR-Typ GF147S (rauscharmer Auslesetyp des GF147) schwer zu bekommen. Der naheliegende Ausweg, den AF239 einzusetzen, war nur über Umwege und mit "Westgeld" möglich.
Der Verstärker ist breitbandig, für schwache Fernsender bei gleichzeitig starken Nahsendern nicht die beste Lösung. Allerdings ist die Richtwirkung von großen Yagi-UHF-Antennen sehr ausgeprägt, so dass der Fernsender-Empfang doch auch mit solch einem breitbandigen Verstärker möglich ist.
In der 2. Stufe arbeitet hier ein Si-Transistor. Der DDR-Typ SF245 reichte zur UHF-Nachvertärkung gerade so aus. Das Rauschen dieses Verstärkers gegenüber dem vorigen ist aber insgesamt größer. Vorteil dieses Verstärkers ist der recht geringe Aufwand.
Ablschließend zu der Gruppe der Bereichs-Verstärker sei diese Schaltung gezeigt, die alle (damaligen) Empfangsfrequenzen abdeckt. Der KML-Bereich ist allerdings nicht dabei. Doch in den noch früheren DDR-Jahren hatte man ja für Radio Luxemburg (Kurzwelle) und RIAS Berlin sowieso eine separate Wurfantenne.
(Schaltung siehe nächste Seite)
Jedes Band hat einen eigenen Eingang, Eingangsweichen sind damit meistens nicht nötig.
Im Band III und im UHF-Bereich wird 2-stufig, im Band I und II wird 1-stufig verstärkt. Der Aufwand für solch einen All-Band-Verstärker ist mit 4 Transistoren relativ gering, die Signalpegel-Festigkeit aufgrund der Breitbandigkeit aber auch.
Diesen Verstärker habe ich eingesetzt, wenn bei relativ gutem Empfang die Kabeldämpfung der langen Empfängerzuleitung ausgeglichen werden sollte. Besonders mit dem aufkommenden Farb-Fernsehen reichte der Signalpegel am Empfängereingang oft nicht aus.
Im UHF-Bereich kann ein Vorverstärker über die Zuleitung gespeist werden. Ist dies nicht erforderlich, wird L18 einfach weggelassen. So wie L18 führt auch Drossel L17 direkt von der LP zum Koax-Mittelstift.
Der Aufbau erfolgt, trotz der doch recht umfangreichen Schaltung, im Standard-Gehäuse. Zwei Schirmwände sorgen für einen stabilen Betrieb, bei diesem gedrängten Aufbau sind sie unbedingt erforderlich. Die Transistoren sind auszusparen, für das Anlöten sind entsprechende Bohrungen auf der Leiterplatte vorgesehen.
Kanalverstärker sind schmalbandiger als Bereichsverstärker und werden grundsätzlich auf den Empfangskanal abgestimmt. Für den "Westempfang" in Sachsen betraf dies die Kanäle 4, 10 und 23.
Der folgende K4-Verstärker ist nach den Röhrenverstärkern (mit ECC88) einer der ersten von mir gebauten Transistorverstärker.
Ein- und Ausgang sind noch für symmetrisches Flachbandkabel vorgesehen. Wahlweise ist Koaxkabel anschließbar, dieses war aber zu jener Zeit bei privaten Empfangsanlagen noch nicht so üblich. Die genormten Impedanzen von 240 Ω symmetrisch und 60 Ω unsymmetrisch änderten sich später in 300 Ω und 75 Ω. Der eingesetzte DDR-Transistor GF145 entspricht etwa dem AF139.
Für den Abgleich sind zwei Ferritkern-Eingangsspulen vertikal angeordnet, die abstimmbar sind. Damit erreicht man eine höhere Eingangsselektivität. Die Signalauskopplung am Q1-Kollektorschwingkreis erfolgt über einen kapazitiven Spannungsteiler, der die nötige Ausgangsanpassung vornimmt. Der Saugkreis L5-C7 sorgt für zusätzliche Selektion.
Dieser K4-Verstärker hat sich trotz seines einfachen Aufbaus als sehr praxistauglich erwiesen. Der K4-Abgleich mit dem Trimmer ist einfacher gegenüber 2 Spulen. Nur 2 Widerstände sind zur Arbeitspunkteinstellung nötig.
Dieser Verstärker hat eingangsseitig einen mit Trimmer abgleichbaren Saugkreis. Dadurch wird die Eingangsselektivität erhöht. Der Ausgang ist breitbandig ausgelegt. Als Besonderheit ist am Ausgang ein Dämpfungssteller vorhanden. Damit ist der Ausgangspegel einstellbar.
Dieser K4-Verstärker ist eine Sparversion im Blechgehäuse mit Dämpfungssteller. Die Betriebsspannung (14 V) kann nur über das ausgangsseitige Koaxkabel erfolgen. Widerstand R2 ersetzt die dort übliche Drossel und dient gleichzeitig als Kollektorwiderstand für Q1. R1 ist der Basiswiderstand, der gleichstrommäßig direkt mit dem Q1-Kollektor verbunden ist und somit den Q1-Arbeitspunkt stabilisiert.
Die wenigen Bauelemente sind in einem Weißblechgehäuse freitragend untergebracht. Das Gehäuse erhält zwei Deckel, die etwa 2 mm über die Seitenwände stehen, damit sie dann von außen verlötet werden können. Der Abgleich des eingangsseitigen Saugkreises und die Pegeleinstellung können bei geschlossenem Gehäuse vorgenommen werden.
Teilweise habe ich auch industriell gefertigte Gehäuse verwendet, die als steckbare Pegeleinsteller im Handel erhältlich waren. Es war dann nur noch eine Bohrung für den Trimmerabgleich erforderlich. Deckel und Boden waren abgekantet und wurden einfach aufgesteckt. Die ganze Fertigung hat maximal 30 Minuten gedauert, vorteilhaft, wenn es einmal schnell gehen musste.
Beim Einlöten der Bauelemente muss man darauf achten, dass die Spulen L1 und L2 rechtwinklig zueinander stehen und möglichst weit voneinander angeordnet sind. Sie sollten möglichst nicht miteinander koppeln, um eine Rückkopplung zu vermeiden. Der Verstärker kann sonst schwingen und dadurch beim Nachbarn den TV-Empfang stören.
Wenn man bedenkt, welcher Aufwand betrieben werden musste, als es noch keine geeigneten Transistoren gab und noch die gute alte ECC88 eingesetzt wurde, war dieser Verstärker ein Riesenfortschritt. Und doch ist diese Technik antiquiert im Vergleich zu den heutigen winzigen Verstärkermodulen, die nur wenige Quadratmillimeter groß sind und breitbandig bis in den Gigahertzbereich hinein verstärken.
Dieser K4-Verstärker ist sowohl im Eingang als auch im Ausgang mittels Trimmer abgleichbar und in einem Blechgehäuse ohne Leiterplatte realisiert. Die Betriebsspannung (14 V) kann nur über das ausgangsseitige Koaxkabel erfolgen. Widerstand R2 ersetzt die dort übliche Drossel und dient gleichzeitig als Kollektorwiderstand für Q1. R1 ist der Basiswiderstand, der gleichstrommäßig direkt mit dem Q1-Kollektor verbunden ist und somit den Q1-Arbeitspunkt stabilisiert.
Die wenigen Bauelemente sind in einem Weißblechgehäuse freitragend untergebracht. Das Gehäuse erhält zwei Deckel, die etwa 2 mm über die Seitenwände stehen, damit sie dann von außen verlötet werden können. Der Abgleich des eingangsseitigen Saugkreises und des ausgangsseitigen Parallelschwingkreises kann bei geschlossenem Gehäuse vorgenommen werden.
Um eine Schwingneigung sicher zu verhindern, wurde ein Trennblech eingelötet. Für den Transistor Q1 existiert am Boden eine kleine Aussparung. So kann der Emitteranschluss sehr kurz mit Masse verbunden werden.
Teilweise habe ich auch industriell gefertigte Gehäuse verwendet, die als steckbare Pegeleinsteller im Handel erhältlich waren. Deckel und Boden waren abgekantet und wurden einfach aufgesteckt.
Das eingelötete Schirmblech teilt den Verdrahtungsraum in die Eingangskammer und in die Ausgangskammer. Bei geschlossenem Boden und Deckel ist eine Rückkopplung über die Spulen ausgeschlossen. Der Verstärker arbeitet trotz des geringen Aufwands sehr stabil.
Dieser Band-III-Verstärker ist im Ausgangskreis abgleichbar, so dass die Mittenfrequenz der Verstärkung innerhalb des Bandes verschiebbar ist. Entweder erfolgt der Abgleich auf einen schwachen Sender oder bewusst von einem zu starken Sender weg. Die Selektivität ist natürlich nicht sehr groß. Stören sich zwei zu empfangende Sender zu sehr, muss mit Topfkreis-Filtern gearbeitet werden.
Ich hatte die Schaltung vorzugsweise für Kanal 10 ("Hamburger") verwendet und in meinem Systemgehäuse realisiert. Durch leichtes Auseinanderziehen bzw. Zusammendrücken der Windungen der Eingangspulen (L1 bis L3) konnte die Kanal-Selektivität noch ein wenig erhöht werden.
Die Ausgangsspule L4 ist durchgängig gewickelt und hat nach der 1. Windung vom masseseitigen Ende her eine Anzapfung für den 75-Ohm-Ausgang. Für den Trimmer C5 konnte auch der besser erhältliche Keramik-Scheibentrimmer 3 bis 12 pF eingesetzt werden.
Dieser K10-Verstärker ist ähnlich dem vorigen K10-Verstärker aufgebaut, hat aber eine induktive Kopplung am Ausgang. Der Abstimmbereich des Ausgangskreises mit C4 reicht zwar auch für das ganze Band III (Kanal 5 bis 12), wurde aber von mir nur für Kanal 10 genutzt.
Zur Optimierung der Kanal-Selektivität können auch hier die Eingangsspulen L1 bis L3 auf die Kanal-10-Mittenfrequenz abgestimmt werden. Bei schwachem Empfangssignal gelang dies ohne Messgerät, also nur mit Hilfe des meist verrauschten Fernsehbildes. Zur noch besseren Kanaltrennung sind Verstärker in Topfkreis-Technik erforderlich, denn das starke Signal vom Kanal 8 (1. Programm der DDR) stopfte oft die Verstärkerstufe zu, so dass Kanal 10 gestört wurde.
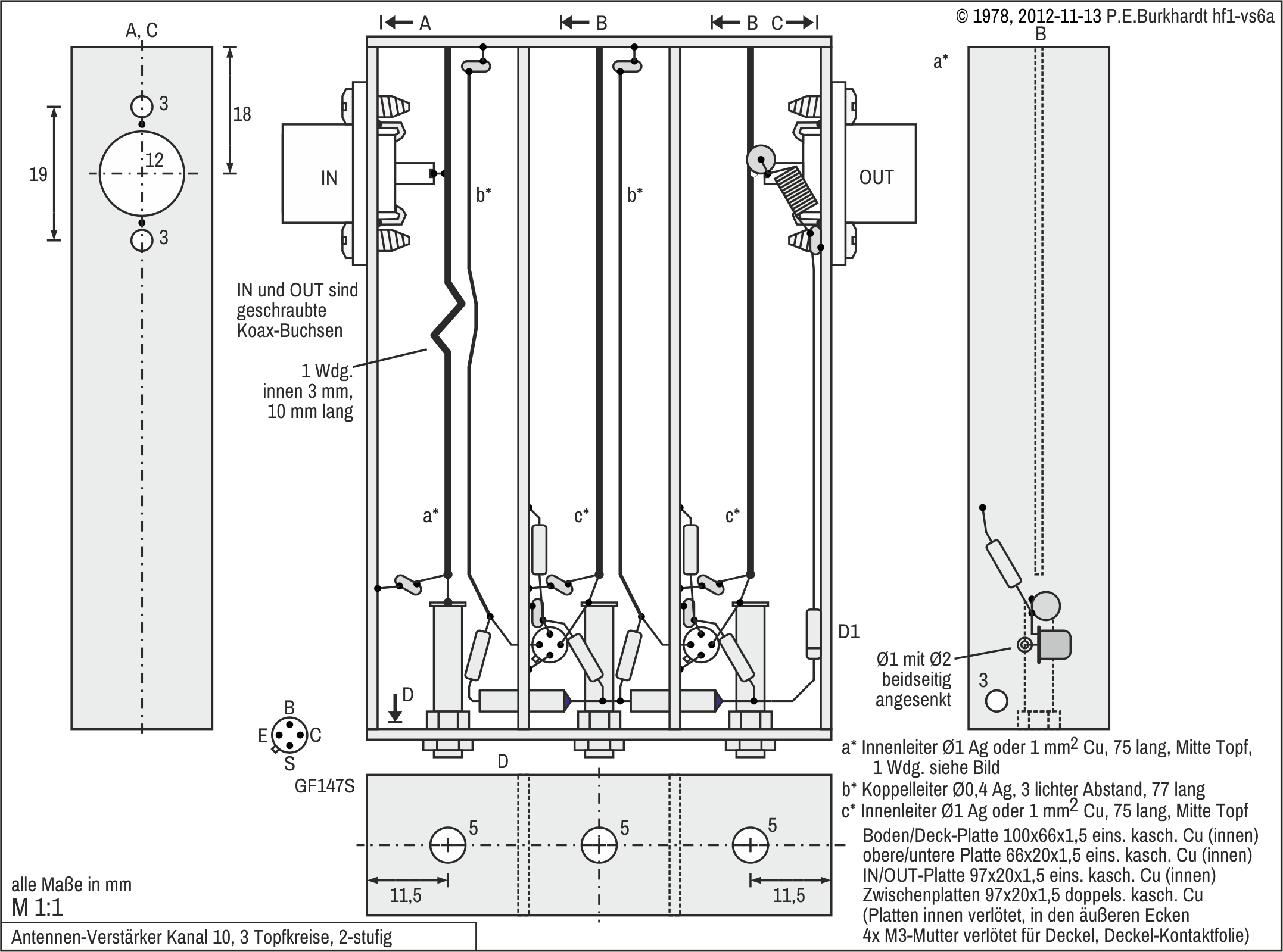
Die beste Selektivität und auch rauscharme Verstärkung bringen Verstärker mit abstimmbaren Topfkreisen. Für 213 Mhz (K10-Mittenfrequenz) sind zwar Topfkreise schon recht groß, aber der Aufwand lohnt sich. Störungen durch benachbarte Sender wurden gut unterdrückt. Die Eingangs-Selektivität ist ebenfalls so gut, dass der erste Transistor gegen Intermodulationsstörungen gut geschützt ist. Mit dem Koppelschleifen-Abstand zum Innenleiter lassen sich in weiten Grenzen Selektivität und Verstärkung einstellen.
Die Parallel-Kondensatoren C1, C5 und C9 müssen ggf. an den konkreten Aufbau angepasst werden. Es kann sein, dass der Abgleichbereich der Rohrtrimmer nicht ausreicht, so dass geringfügig andere Werte erforderlich sind.
Der Aufbau muss sorgfältig nach HF-technischen Gesichtspunkten erfolgen. Jeder Millimeter Draht an ungeeigneter Stelle führt zur Serieninduktivität, die schädlich ist. Besonders die Transistor-Basis muss extrem kurz über Cs auf Masse liegen. Es gibt zwar Abblock-Scheiben-Cs ohne Anschlußdrähte, diese standen aber damals nicht zur Verfügung.
Nach dem Aufbau (inkl. der weiter oben schon beschriebenen Kontaktfolien über den Trennwänden zur Deckel-Kontaktierung) sollte die gesamte Schaltung einschließlich der Cu-Flächen mit einem lötfähigen Schutzlack eingepinselt werden. In Medizin-Alkohol gelöstes Kolophonium hat sich gut bewährt.
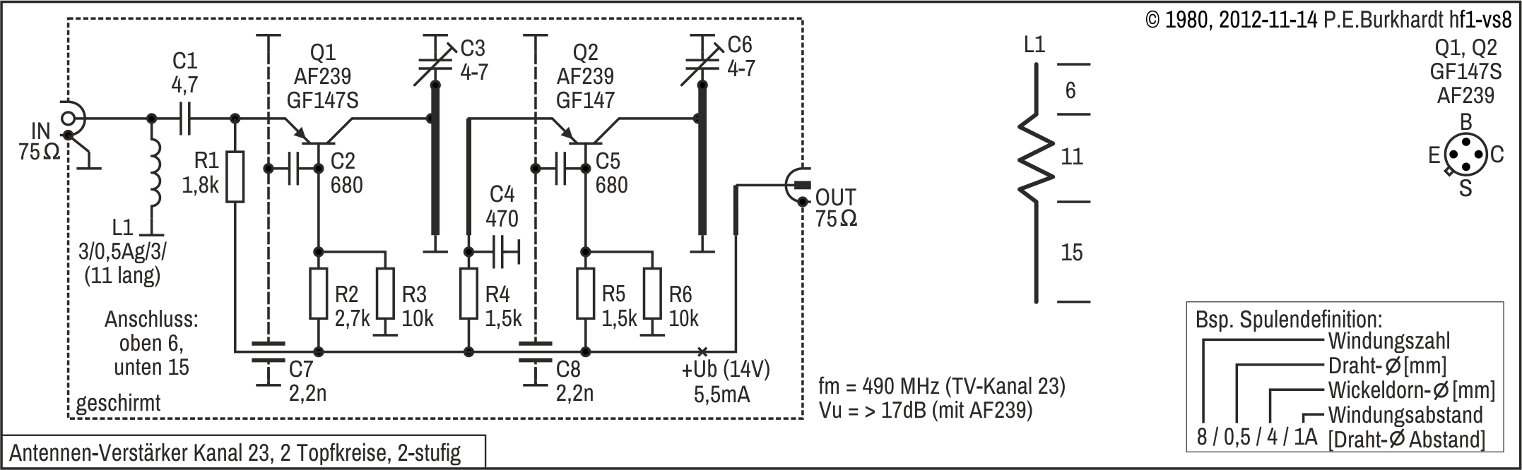
Der K23-Verstärker (ZDF) ist in gleicher Technik (Schaltung und Aufbau) wie der K10-Verstärker realisiert und war der absolute "Renner". Besonders mit dem noch etwas besseren AF239 wurde so manches vermeintliche Empfangsloch "wegverstärkt". Voraussetzung war natürlich eine gute Antenne, d.h. bei sehr schlechten Empfangsverhältnissen eine Yagi-Vierer-Gruppe mit je mindestens 20, manchmal auch 35 Elementen.
Im UHF-Bereich ist es besonders wichtig, den Vor-Abgleich (bei verschraubtem Deckel) noch im Labor (andere nennen es Bastelstube) durchzuführen. Da sieht man, ob der Abgleichbereich richtig ist. Der endgültige Abgleich erfolgt dann vor Ort an der Antenne.
Die Schaltung entspricht der vorigen, doch der Aufbau erfolgt im Gehäuse mit Systemmaßen.
Die Trimm-Cs sind hier senkrecht auf der Bodenplatte angeordnet. Dadurch kann das Gehäuse kürzer sein.
Diese K23-Sparversion hat nur 2 abstimmbare Topfkreise und ist im Weißblech-Gehäuse realisiert. Die Eingangs-Selektivität ist nicht ganz so gut, dafür ist aber die Empfindlichkeit sehr gut, da das Eingangssignal direkt auf den Transistor führt.
Die kleine Bauweise konnte durch geschirmte Mini-Keramik-Trimmer realisiert werden. Diese Trimmer sind zwar nicht ganz so gut wie Rohr-Luft-Trimmer, sie haben sich aber auch bewährt.
Bei diesem Blechgehäuse sind Boden und Deckel einfach abgekantet und aufgeklemmt, eine heute verbreitet angewandte Methode. Teilweise habe ich Boden und Deckel auch nur überstehen lassen und punktweise aufgelötet.
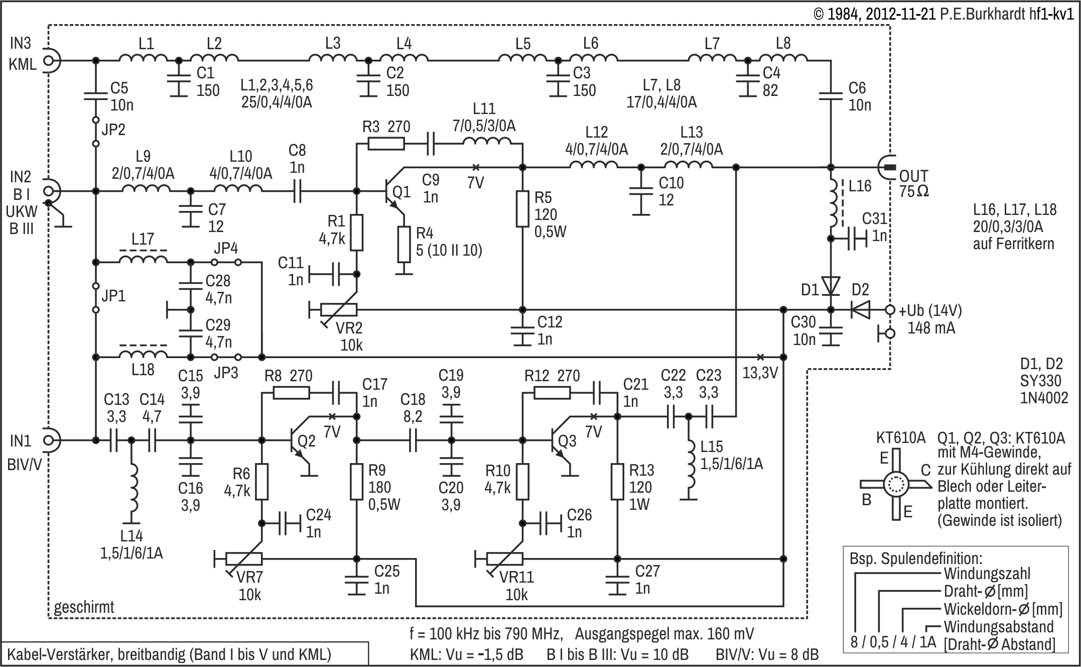
Die bis hier beschriebenen Bereichs- und Kanalverstärker eignen sich für normalerweise einen, maximal aber drei Teilnehmer. Sind mehr Empfänger-Anschlüsse zu realisieren und soll zur Vereinfachung der Kabelverlegung das Verteilnetz im Durchschleif-System aufgebaut werden, sind Leistungsverstärker erforderlich. Vor allem die Endstufen dieser Leistungsverstärker müssen einen höheren HF-Pegel liefern können, um die Kabel- und Verteilerdämpfung auszugleichen.
Der Verstärker verstärkt breitbandig alle TV-Bänder und UKW. Zusätzlich sorgt eine Umgehungsweiche für das Durchschleifen des KML-Bereichs. Je nach Länge der Empfängerzuleitungen sind bis zu 8 Anschlüsse möglich.
Die Eingänge sind durch Brücken wie folgt variabel nutzbar:
Zur Versorgung angeschlossener Antennen-Verstärker können weitere Brücken wie folgt gesetzt werden:
Die Verstärkung reicht, um Kabel- und Anschlußdämpfung auszugleichen. Den nötigen Signal-Rausch-Abstand müssen (falls erforderlich) die Vorverstärker garantieren. Wichtig ist die Aussteuerfähigkeit des Verstärkers. Es sind Pegel bis 160 mV möglich. Das wird vor allem durch den Einsatz des KT610A bei relativ hohem Betriebsstrom erreicht.
Die Breitbandigkeit des Verstärkers ergibt sich durch Hoch/Tiefpass-Aufteilung des Frequenzbandes in den UHF-Bereich (IN1) mit 2-stufiger Verstärkung und in den VHF-Bereich (IN2) mit 1-stufiger Verstärkung. Die Verstärkerstufen sind RC-gekoppelt (ohne Spulen). Der KML-Bereich wird nicht verstärkt, er erfährt eine geringfügige Dämpfung durch das Umgehungsnetzwerk.
Mehrere Empfänger sollten über dämpfungsarme Verteiler angeschlossen werden. Widerstands-Verteiler eignen sich weniger. Bei +Ub-Versorgung über die Zuleitung muss der Verteiler einen DC-Pfad besitzen.
Dieser Verstärker wird direkt von der K4-Antenne gespeist und liefert an 2 Ausgängen eine Leistung von bis zu 150 mW. Dabei bleibt der Intermodulationsabstand immer noch bei 30 dB. Mangels Messtechnik habe ich diese von VALVO angegebenen Werte nie nachprüfen können. Allerdings war der Verstärker ziemlich aufwendig und der Aufbau lohnte sich nur in wenigen Fällen, trotz der hohen Selektivität und der hohen Leistungsverstärkung.
Wegen der hohen Verstärkung ist ein allseitig geschirmter Aufbau erforderlich. Wie damals üblich, wurde ein entsprechend aufgeteiltes Kammer-Gehäuse aus Cu-kaschiertem Material zusammengelötet (ähnlich UHF-Verstärker).
Auch die 24V-Plus-Leitung muss sorgfältig von HF-Resten befreit werden, damit die saubere Trennung der Verstärkerstufen gewährleistet ist. Damals waren Durchführungs-Rohrkondensatoren üblich (C14, C15, C16), die zusammen mit den breitbandigen Drosseln (L7, L8) für eine gute Entkopplung sorgen.
Die im Schaltbild angegebene Abgleichanweisung hat VALVO so dokumentiert. In der Praxis habe ich nie irgend einen Transistor aus- bzw. dann wieder eingebaut. Der Verstärker wurde aufgebaut, der Strom kontrolliert und dann praktisch in Betrieb genommen. Das heißt, Antenne und Fernseher wurden angeschlossen. Zur Simulation der Kabeldämpfung und um den Fernseher nicht zu übersteuern, wurden in die Ausgangsleitung, manchmal auch zusätzlich in die Antennenzuleitung, 20dB-Dämpfungssteller geschaltet.
Der Abgleich der Trimm-Cs und der Spule L6 erfolgte so, dass sich ein möglichst rauscharmes und störungsfreies Bild ergab. Der Abgleich-Zeitpunkt im Tagesverlauf war wichtig. In Chemnitz (damals noch Karl-Marx-Stadt) war ein russischer (Stör-)Sender aktiv, der genau im K4-Bereich abstrahlte, aber nicht immer in Betrieb war. Der Sender war relativ schmalbandig. Manchmal hörte man russische Wortfetzen, meistens aber nur ein Knarren im Fernsehton. Das Bild war von einem gitterartigen Signal überlagert. Mit einem riesigen abstimmbaren Topfkreis-Filter (dem "Russen-Tod") konnte man den Sender durch schmalbandige Selektion innerhalb des K4-Bereichs soweit unterdrücken, dass der K4-Westfernseh-Genuss nur wenig getrübt wurde. In Verbindung mit dem hier beschriebenen K4-Verstärker konnten beste Ergebnisse erzielt werden. Beim Verstärkerabgleich musste also auch dieses russische Störsignal berücksichtigt werden.
Weichen sind nötig, um mehrere Antennen-Signale möglichst impedanzrichtig und rückwirkungsarm zusammen zu schalten, um das Signal über eine einzige Leitung zum Empfänger leiten zu können. Auch die Aufteilung in Rundfunk- und TV-Bereich für Radio und Fernseher erfordert eine Weiche, wenn das Signal über eine gemeinsame Leitung kommt. Fast alle hier beschriebenen Weichen sind Antennen-Weichen. Hat der Antennen-Verstärker bereits mehrere Eingänge, ist die entsprechende Weiche eingebaut und keine separate Weiche erforderlich.
Spezielle Filter oder auch Sperrkreise werden benötigt, wenn ein ganz bestimmter Kanal oder Sender durchgelassen oder gesperrt werden soll. Besonders im UKW-Bereich sind Filter/Sperrkreise in Topfkreis-Technik für den Pegel-Angleich vorteilhaft, wenn starke Nahsender stören.
Weiterhin sind Koppel-Leitungen (Antennenkopplung), Symmetrierglieder, Dämpfungssteller, Verteiler, Empfängerdosen u.a. zur Komplettierung einer Antennenanlage nötig. Einiges davon ist im Folgenden beschrieben.
Weichen mit Spulen (L) und Kondensatoren (C) sind einfach zu realisieren. Ein Eingang mit Hochpass, ein Eingang mit Tiefpass, beide Ausgänge verbunden - fertig ist die Weiche. Allerdings ist die praktische Schaltung komplizierter, da oft nicht nur hohe und niedrige Empfangs-Frequenzen zusammengeführt werden sollen. Die einzelnen Empfangsbänder haben fast immer eine separate Antenne, deren Signal gemeinsam den TV-Empfänger-Eingang erreichen müssen. Dazu kommt noch das UKW-Signal (Band II), das bei gemeinsamer Leitung von der Antennenanlage zur Wohnung auf dieser Leitung ein- und wieder ausgekoppelt werden muss.
Weiter auseinander liegende Frequenzbereiche sind in LC-Technik relativ einfach rückwirkungsarm zusammenschaltbar. Die Kanal-Trennung innerhalb eines Empfangsbandes ist dagegen nur mit erhöhtem Aufwand möglich. Liegen die Kanäle nebeneinander, ist die LC-Weiche normalerweise überfordert.
Die meist verwendeten Yagi-Antennen-Dipole haben prinzipiell einen symmetrischen Anschluss. Deren Signal wurde in der Anfangszeit des Fernsehens deshalb mit 240-Ohm-Flachbandkabel zum Empfänger geleitet. Dieses Kabel ist aber störempfindlich, verlangt eine sehr sorgfältige Verlegung (großer Abstand zu Gegenständen) und widerspricht den unsymmetrischen Eingangsstufen der Verstärker und Empfangsgeräte. Es ist also am Eingang eine De-Symmetrierung erforderlich.
Mit der Nutzung des UHF-Bereichs war das Flachbandkabel überfordert. Das nun benutzte unsymmetrische Koaxkabel eignet sich besser und wurde schnell zum Standardkabel in Antennenanlagen. Die Impedanzwandlung von 240 Ω symmetrisch auf 60 Ω unsymmetrisch (später 300 Ω auf 75 Ω) erfolgt bereits am Dipol-Anschluss der Antenne.
Die folgenden VHF-Weichen haben nur Flachbandkabel-Eingänge und sind symmetrisch aufgebaut. An die Ausgänge kann wahlweise auch Koaxkabel angeschlossen werden.
Später setzte sich der unsymmetrische Aufbau der LC-Filter durch.
Die gezeigten Symmetrier-Trafos sind breitbandig und deshalb vielfältig verwendbar. Sie werden auch in den Verstärkerschaltungen benutzt.
Die Eingänge waren für Koax- und Bandkabel, die Ausgänge nur noch für Koaxkabel ausgelegt.
Nur noch für Koaxkabel sind die folgenden Hoch-, Tief- und Bandpässe geeignet. Für die unterschiedlichen Anforderungen (Anzahl und Empfangsbereiche der Antennen) entstand ein Weichen-Baustein-System in 75-Ohm-Technik. Jeder Ausgang eines Bausteins kann mit dem Ausgang eines anderen Bausteins rückwirkungsarm zusammengeschaltet werden, so dass die Eingangsfrequenzen auf einer gemeinsamen Leitung zur Verfügung stehen.
Natürlich müssen die kombinierten Bausteine zusammen passen. Zu nahe beieinander liegende Kanäle oder ein Kanal mit einem Band im gleichen Frequenzbereich sind nicht möglich. Dafür ist die Trennung der verwendeten Hoch-, Tief- und Bandpässe in LC-Technik zu gering.
Die im Bild angegebenen Kondensator-Werte und Wickeldaten sind optimiert und reichen für den sicheren Nachbau aus. Allerdings kann ein Feinabgleich der Spulen durch Auseinanderziehen bzw. Zusammendrücken Verbesserungen bringen, insbesondere bei den Kanalweichen und UHF. Die Kondensatoren sollten maximal 5%-Toleranz haben.
Eine realisierte Baustein-Weiche mit zugehörigem Aufbau und Leiterplatten-Layout zeigen die folgenden Bilder. Die Weiche ist auf die damaligen örtlichen Erfordernisse zugeschnitten und hat alle Eingänge, die gebraucht wurden.
Die Weiche hat neben den Ein- und Ausgängen einen externen Ub-Anschluss (wie die Verstärker). Damit können Vorverstärker für K4, K10 und UHF gespeist werden. Ub kann aber auch vom Ausgangskabel kommen.
Das Gehäuse ist ein Standard-Gehäuse, allerdings mit 7 Koaxanschlüssen. Alle Spulen sind so angeordnet, dass sie sich möglichst wenig beeinflussen. Schirmende Trennwände sind nicht erforderlich. Die Ub-Drosseln sind stehend angeordnet.
Das Leiterplatten-Layout ist so gestaltet, dass auch andere Weichenbausteine Verwendung finden können. Bei Bedarf kann auch die Anzahl der Eingänge reduziert werden. Die gesamte Anordnung ist ähnlich universell wie die Leiterplatte zu den Bereichsverstärkern.
Der hier betrachtete Richtkoppler besteht aus 2 Wellenleitern, in der sich die zu koppelnden Wellen ausbreiten. Abhängig von der Ausbreitungsrichtung wird das Signal von einem Leiter zum anderen Leiter bevorzugt übertragen. Das bedeutet aber auch, das in der entgegengesetzten Richtung kein Signal übertragen wird (bzw. nur stark gedämpft).
Richtkoppler können zur Zusammenführung von HF-Signalen verwendet werden, so wie es auch bei frequenzabhängigen LC-Weichen der Fall ist. Allerdings besteht bei Richtkopplern in bestimmten Grenzen keine Frequenzabhängigkeit, wenn die Koppelleiter an den zu übertragenden Frequenzbereich angepasst sind. Das bedeutet, HF-Signale des gleichen Empfangsbandes können genau so gut zusammengeführt werden wie Signale weiter auseinander liegender Frequenzen.
Richtkoppler können aber auch zum Aufteilen bzw. Auskoppeln von HF-Signalen dienen. Damit ist der Einsatz in Verteilsystemen von Antennenanlagen möglich. Vorteil in diesem Fall ist, dass die Rückwirkung des Empfängeranschlusses auf das Verteilnetz gering ist. Bei Widerstandsverteilern ist diese Rückwirkungsarmut nicht gegeben.
Es gibt weitere Anwendungen des Richtkopplers (z.B. als Mess-Richtkoppler), die aber hier nicht betrachtet werden.
Der verwendete Richtkoppler hat 4 Anschlüsse (auch als Tore bezeichnet). Ein Anschluss ist mit dem Wellenwiderstand abgeschlossen (ohmscher Widerstand). Es verbleiben 3 Anschlüsse. Bei Verwendung als Weiche dienen 2 als Eingang (IN1, IN2), der letzte als Ausgang (OUT). Die beiden Eingänge sind nicht immer gleichberechtigt.

Das Übertragungsverhalten eines Anschlusses zu den jeweils anderen beiden Anschlüssen kann wie folgt definiert werden:
Durchgangsdämpfung und Koppeldämpfung sollten möglichst klein sein, um geringe Signalverluste zu haben. Die Richtdämpfung dagegen sollte möglichst groß sein, um die Beeinflussung der beiden Eingänge gering zu halten. Die erreichbaren Dämpfungswerte hängen vom praktischen Aufbau des Kopplers ab.
Die Richtkoppler-Eigenschaften erlauben es, zwei Kanäle des gleichen Empfangsbandes rückwirkungsarm zusammenzuführen (z.B. Kanal 8 und Kanal 10) oder einen Kanal im gleichen Band einzukoppeln (z.B. Kanal 23 in das UHF-Band IV/V). Das ist mit LC-Weichen nicht möglich. Wegen der Durchgangsdämpfung sollte das schwächere Signal vor dem Koppeln verstärkt werden.
Im Bild sind die drei oft verwendeten Koppler dargestellt. Das stärkere Signal ist immer über den Koppeleingang (Eingang mit der Koppeldämpfung Ak) angeschlossen. Das Signal des Fernsenders hängt am durchgehenden Wellenleiter mit der Durchgangsdämpfung Ad, die etwas geringer ist. Je nach Pegel können die Eingänge natürlich auch anders belegt werden.
Mit diesem Hybrid-Koppler kann man 2 UKW-Quellen gleichberechtigt zusammenschalten. Das können Antennen sein oder auch eine Antenne und ein Verstärkerausgang.
Im Bild rechts ist ein ähnlicher Koppler dargestellt, allerdings nur mit 6 Doppelwindungen. Der Koppler dürfte auch für Band I (Kanal 4) oder Band III (Kanäle 5 bis 12) funktionieren.
In kritischen Empfangssituationen sind die Empfangspegel in einem Band meist sehr unterschiedlich, wenn nicht mit Antennen-Gewinn und/oder Antennen-Richtung ein Pegel-Ausgleich zu schaffen ist.
Zum Beispiel ist das gemeinsame Behandeln des UKW-Bereichs mit Dämpfungssteller oder Verstärkung meist unmöglich. Bei Dämpfung gehen die Fernsender im Rauschen unter (bzw. Stereo schaltet ab), bei Verstärkung wird der Verstärker oder auch der UKW-Empfängereingang übersteuert. Abhilfe bringen Filter und Sperrkreise in Topfkreis-Technik, um einzelne Sender zu bevorzugen oder auch zu dämpfen, damit ein einigermaßen ausgeglichenes Pegelbild im UKW-Band erreicht wird.
Im VHF-Band III gab es das Problem, dass der K8-Sender (DDR 1. Programm) so stark war, dass der Empfang auf Kanal 10 stark gestört und somit fast unmöglich war. Selbst eine 13-Element-Yagi (oder auch als Zweier-Gruppe) konnte ohne zusätzliche Filterung kein ausreichend störarmes Signal liefern.
Die elektrische Schaltung im folgenden Bild zeigt für Band III, UKW und Band I in Topfkreis-Technik aufgebaute Filter (Kanalpässe) und Sperrkreise (Saugkreise). Besonders interessant dürfte der Saugkreis für eine Störfreqenz im Kanal-4-Bereich sein, der als sogenannter "Russen-Tod" gegen die Funkstörungen der russischen (sowjetischen) Armee im Raum Karl-Marx-Stadt eingesetzt wurde (rechts im Bild).
Der Aufbau erfordert vor allem wegen der nötigen Größe etwas Aufwand. Je niedriger die Frequenz, desto größer müssen die Topfkreise sein, wenn die Schwingkreis-Güte für den Einsatzzweck ausreichend sein soll. Alle Kreise sind mit kupferkaschiertem Glasfaser-Halbzeug realisiert. Aus den folgenden Bildern sind Einzelheiten zum Aufbau ersichtlich.
Das Gehäuse für die Band-III-Topfkreise ist ziemlich groß (oben). Zwei Sperrkreise senken speziell das K8-Signal ab. K10 wird bevorzugt gegenüber allen Frequenzen durchgelassen. Diese Topfkreis-Kombination war erforderlich, da Kanal 10 aus nahezu der gleichen Richtung wie der nähere Kanal 8 zu empfangen war. Mit Drehen der Antenne konnte man da nichts ausrichten (im wahrsten Sinne des Wortes "ausrichten").
Die Eintauchtiefe der Serien-Koppel-Spulen L1 und L2 bestimmt neben der K8-Sperrtiefe auch die K10-Durchlassdämpfung. Die angegebene Lage ist optimal, eine Nachjustierung war nie erforderlich. Lediglich die Parallel-Kondensatoren C3, C5 und C7 mußten manchmal geringfügig verändert werden.
Bei diesem UKW-Sperrkreis (oben) ist die Kopplung zwischen L1 und L2 ebenfalls bestimmend für die Sperrtiefe. Je nach gewünschter Dämpfung des Nahsenders kann der Koppelgrand verändert werden. L1 näher an L2 bedeutet größere Sperrtiefe (größere Dämpfung).
Bei diesem UKW-Filter gibt es außer dem Frequenzabgleich nichts einzustellen. Oft reichte schon dieses Filter aus, um den Lieblingssender so zu bevorzugen, dass die anderen nicht störten.
Die Spulen wurden meist mit entisolierten Elektro-Kupferleitungen realisiert (NYA-Draht 0,75 mm2, 1 mm2 und 2,5 mm2). Besser, aber absolut nicht verfügbar, wäre versilberter Draht gewesen. Die Trimmer sind durchweg luftisolierte Keramik-Rohr-Trimmer in hochwertiger Ausführung. Versuche mit keramischen Scheibentrimmern brachten schlechtere Ergebnisse.
Insgesamt wurden aber Ergebnisse erzielt, die den Aufwand rechtfertigten. Die Nutzfrequenz-Durchgangsdämpfung war noch erträglich, die viel wichtigere Sperrdämpfung für unerwünschte Signale war so gut, dass kaum noch Störungen im am meisten gefährdeten TV-Kanal 10 auftraten.
Die Abstimmung muss sorgfältig erfolgen. Zur sicheren Kontaktgabe der Topfkreis-Deckel ist (wie weiter oben beschrieben) Cu-Folie oder auch Weissblech über die Kammer-Kanten zu löten. Zur Langzeitstabilität hatte ich anfangs Bedenken. Eine Maßnahme gegen Korrosion ist, den gesamten Topfkreis-Innenraum mit Kolophonium-Tinktur zu bestreichen (einschließlich der blanken Cu-Spulen). Bewährt hat sich darüber hinaus das Festlegen der Spulenwindungen mit Alleskleber (Duosan). Mechanische Schwingungen, die durch Resonanzänderung eine Frequenzmodulation hervorrufen können, werden so sicher unterdrückt. Die anschließende Alterung im Backofen (oder ersatzweise früher auf der Herdplatte) sorgt für stabile Bedingungen über längere Zeit. Das alles sind zwar Hausmittel, die früher zur Verfügung standen, sie erfüllen aber den beabsichtigten Zweck.
Das folgende Bild zeigt einen mit Weissblech realisierten 2-fach-UKW-Sperrkreis, der 28 (!) Jahre im Dachboden verschraubt war. Meine Neugier nach der Demontage war groß: Messungen ergaben, dass sich die Sperrfrequenzen nur geringfügig (funktional nicht nachteilig) verschoben hatten. Erstaunlich, da die Dachboden-Temperaturen im betreffenden Haus zwischen 45 Grad im Sommer und um den Gefrierpunkt im Winter schwankten.
Der Aufbau unterscheidet sich etwas von den Zeichnungen weiter oben, diese Weißblech-Variante war etwas einfacher zu bauen und günstiger.
Gut ist die in Serie geschaltete Koppelspule zu erkennen, die hier ziemlich weit in die Saugkreis-Spule eintaucht. Die Trimmer haben Serien-Cs zur Kapazitätsreduzierung. Der richtige Trimmer-Wert war wohl wieder einmal nicht verfügbar. Gut sichtbar ist auch der zur Stabilisierung eingesetzte Kleber.
Diesen im Einzelhandel angebotenen UKW-Sperrkreis gab es in mehreren Varianten als SK1 (1 Sperrkreis), SK2 (2 Sperrkreise) und den SK3 wie im Bild. Der innere Aufbau ist ähnlich meiner eigenen Konstruktion, die Spulen waren sogar versilbert. Der SK3 diente mir damals als Vorbild, war schwer zu bekommen und mir auch zu teuer.
Bild rechts: UKW-Sperrkreis SK3, ohne Gehäsedeckel 1
(Urheber: Ulfbastel, 5. Januar 2020, © nach CC BY-SA 3.0)
1 UKW-Sperrkreis SK3. Originalbeschreibung: Sperrkreis für UKW-Empfang, um starke Sender auszublenden. Quelle:
https://de.wikipedia.org/wiki/Datei:UKW-Sperrkreis.jpg, Lizenz: https://creativecommons.org/licenses/by-sa/3.0/deed.en,
Zuschnitt/Farbanpassung: Peter E. Burkhardt, Weitergabe des Fotos zu gleichen Bedingungen
In Karl-Marx-Stadt (heute wieder Chemnitz) war der Empfang des TV-Kanals 4 oft durch regionale Funksender gestört. Für die russische Administration waren die Frequenzen im TV-Band I zur Nutzung freigegeben. Die Störungen durch den russischen Funkdienst machten sich ausgerechnet im Fernsehkanal 4 (ARD) durch Gitter im Bild und Überlagerung des russischen Tons bemerkbar. Manchmal konnte man den russischen Sprechfunk gut verständlich mithören, allerdings meistens nur für kurze Zeit. Zusätzlich verschärfend wirkten sich die Antennenverstärker für Kanal 4 aus, die wegen der geringen Empfangsfeldstärke meistens erforderlich waren. Durch Intermodulation mit dem regional starken Funksignal entstanden weitere störende Frequenzen. Zu allem Unglück war die Polarisation des Kanals 4 genauso vertikal wie die Polarisation der Funkgeräte.
Da die Störungen schmalbandig waren, half oft die Verstellung der Kanal-Feinabstimmung am TV-Gerät, um etwas besser entweder Ton oder Bild empfangen zu können. Die Lösung für dieses Problem war der sogenannte "Russen-Tod", ein Saugkreis der in die Antennenzuleitung kurz vor dem Fernseher eingeschleift wurde. Es war ein Topfkreis, dessen konstruktiver Ursprung mir nicht bekannt ist. Allerdings waren solche "Coaxial Resonators" ein alter Hut und wurden in der englischsprachigen Literatur schon Ende der 50-iger Jahre beschrieben.
Ich hatte für den Aufbau eine Lösung gewählt, wie sie sich schon in meinen UKW-Sperrkreisen bewährt hatte. Allerdings waren die Abmessungen riesig und der Leiterplattenverbrauch entsprechend hoch. Die oft von Klempnern hergestellten Töpfe funktionierten zwar auch, waren mir aber zu schwer und unansehnlich.
Die Lage der Koppelspule L1 ist kritisch. Sehr nahe an L2 wird zwar der Störsender gut gedämpft, allerdings ist je nach Lage der Störfrequenz im K4-Frequenzband entweder der Ton oder das Bild so schlecht, so dass kein Fernsehgenuss möglich war. Weiter weg von L2 ist die Dämpfung des Störsenders schlechter, TV-Bild und -Ton waren aber akzeptabel. Die gezeichnete Lage im Bild war meist optimal, musste aber vor Ort je nach Lage der Empfangsanlage angepasst werden. Deshalb ist der Deckel schraubbar.
Der Abgleich des Trimmers auf die Störfrequenz musste in der Regel nur einmal vor Ort durchgeführt werden, denn die Sendefrequenz war offensichtlich fest. Wurde sie dennoch gewechselt, konnte der Benutzer die Sperrfrequenz selbst anhand des TV-Bilds ändern, ohne den Kasten öffnen zu müssen.
Bei nur einem Empfänger an der Antennenanlage ist der Aufwand gering. Das einzige Koaxkabel führt vom Antennenanlagen-Ausgang (meist unter dem Hausdach) direkt bis zum Empfängerort (Wohnung). Ist der Verstärker über dieses Kabel zu versorgen, mündet das Kabel im Netzteil und wird dann weiter über die Empfängerweichen (TV/UKW bzw. bei früher getrennten TV-Eingängen noch VHF/UHF) zum Tuner des Empfängers geführt.
Bei mehreren Teilnehmern gibt es je nach Verteiltechnik und Anzahl der Empfängerdosen eine Vielzahl von Möglichkeiten. Meist wurde für mehrstöckige Wohnhäuser die Verkabelung im Durchschleifsystem ausgeführt, d.h. vom Dachboden-Verteiler aus führen mehrere Stammleitungen nach unten, an jeder Stammleitung hängen dann die Empfängerdosen der übereinander liegenden Wohnungen. Bei kleineren oder Einzelanlagen war die Sternverteilung vorteilhaft, d.h. vom Dachboden-Verteiler führte für jeden Teilnehmer eine Leitung direkt bis zum Empfänger.
Eine Schaltung mit Widerständen ist nahezu unabhängig von der Frequenz und Richtung des HF-Signals. Die Widerstände sollten HF-tauglich und mit geringer Toleranz sein. Die Dämpfungswerte sind relativ hoch, was entsprechend hohe Verstärkung voraussetzt.
Die Dämpfung beim Verteiler (oben) war noch akzeptabel, beim Abzweiger (folgendes Bild) allerdings schon ziemlich hoch.
Die gezeigten Verteiler- und Abzweiger-Schaltungen stellen nur das (voll funktionsfähige) Prinzip dar. Sie besitzen keinen DC-Pfad, d.h. die Antennenverstärker-Betriebsspannung kann nur mit zusätzlichem Schaltungsaufwand (Drosseln und Cs) durchgeschleift werden.
Die DDR-Serie 80xx (80-iger Jahre bis Anfang 1990) ist eine robuste, vollgeschirmte Geräteserie aus cadmiertem Stahlblech mit einer Schirmungsdämpfung von mehr als 75 dB. Die Verteiler und Abzweiger enthalten nur Widerstände und wurden in großen Gemeinschafts-Antennenanlagen eingesetzt. Das Durchschleifen der Antennenverstärker-Betriebsspannung ist nicht vorgesehen.
Die Koaxkabel werden mittels Schraubverbindung unmittelbar an die Ein- und Ausgänge angeschlossen. Jedes Gehäuse ist mit standardisierten Befestigungslaschen ausgerüstet. Die Montage erfolgt mittels Schrauben.
In diesem Monat (11/2013) wurde die Serie für nur 10 Euro-Cent je Gerät im Billig-Elektronik-Markt angeboten. Auch wenn man für das Innenleben kaum Verwendung hat, die Gehäuse sind für HF-Schaltungen (Verstärker usw.) hervorragend geeignet. Die Koaxschraubanschlüsse lassen sich aus dem Gehäuse entfernen, um Koaxsteckbuchsen einzusetzen.
Schaltung der Verteiler 8015 und 8017
Zweifach-Verteiler 8015
Schaltung der Abzweiger 8011 und 8012
Zweifach-Abzweiger 8012
Diese Abzweiger sind noch einfacher aufgebaut und enthalten weniger Widerstände als die entsprechenden Abzweiger 8011 und 8012. Die Durchgangsdämpfung Ad ist geringer, die Anschlussdämpfung Aa dafür etwas höher.
Schaltung der Abzweiger 8013 und 8014
Richtkoppler haben ebenfalls über einen breiten Frequenzbereich ein ausgeglichenes Übertragungsverhalten. Die Dämpfung ist vom Ferrit-Material und Aufbau des Kopplers abhängig und kann den Anforderungen entsprechend ausgelegt werden. Die meisten käuflichen Verteiler und Abzweiger sind in Richtkoppler-Technik ausgeführt. Vorteil ist die höhere Dämpfung von Störsignalen zwischen den Empfängeranschlüssen und von den Anschlüssen zur Antennenanlage. Dabei bleibt die Durchlassdämpfung niedrig.
Eine frühe Eigenbau-Anschlußdose zusammen mit dem 40mA-Netzteil zeigt das folgende Bild. Die HF-Bauelemente befinden sich im Standard-Verstärkergehäuse geschirmt und getrennt vom Netzteil.
Das Netzteil ist eines der beiden damaligen Netzteil-Varianten. Es kann mit 40 mA Laststrom kleine Antennenanlagen versorgen. Bei 45 mA beginnt die Strombegrenzung, dabei ist die Ausgangsspannung nur noch 13 V. Größere Anlagen mit Kabelverstärker erfordern die stärkere Netzteil-Variante mit max. 200 mA Laststrom.
Die Schaltungstechnik entspricht der damaligen Materialsituation. Metallgehäuse, Trafo und Schaltungsmasse sind mit dem Schutzleiter des 230V-Schuko-Steckers verbunden. Die DDR-Transistoren sind leicht ersetzbar, Q1 ist ein 1,5A-Typ. Die Schaltung erlaubt es, verschiedene Z-Dioden als Referenz zu benutzen. Ub ist deshalb mit VR04 auf Nennwert 14 V einstellbar.
Die Strombegrenzung ist mit R03 fest vorgegeben. Bei Kurzschluss fließen ca. 70 mA. Das ergibt bei 20 Vac am Lade-C für Q1 eine Leistung von max. 1,5 W (Überspannung eingerechnet). Diese Leistung muss dauernd über einen Kühlkörper abgeführt werden können. Im Original-Aufbau war der Leistungstransistor isoliert auf eine Wand des Blechgehäuses geschraubt.
Die im Bild angegebenen Dämpfungswerte für TV und Radio gelten inklusive eines kurzen (2 m) flexiblen Koax-Anschlusskabels.
Eine Luxusvariante und das stärkere 200mA-Netzteil sind im Beitrag "Netzteile 14V mit Schutzabschaltung" beschrieben.